Sommer Design Studios
Abingdon
Abingdon
Couldn't load pickup availability
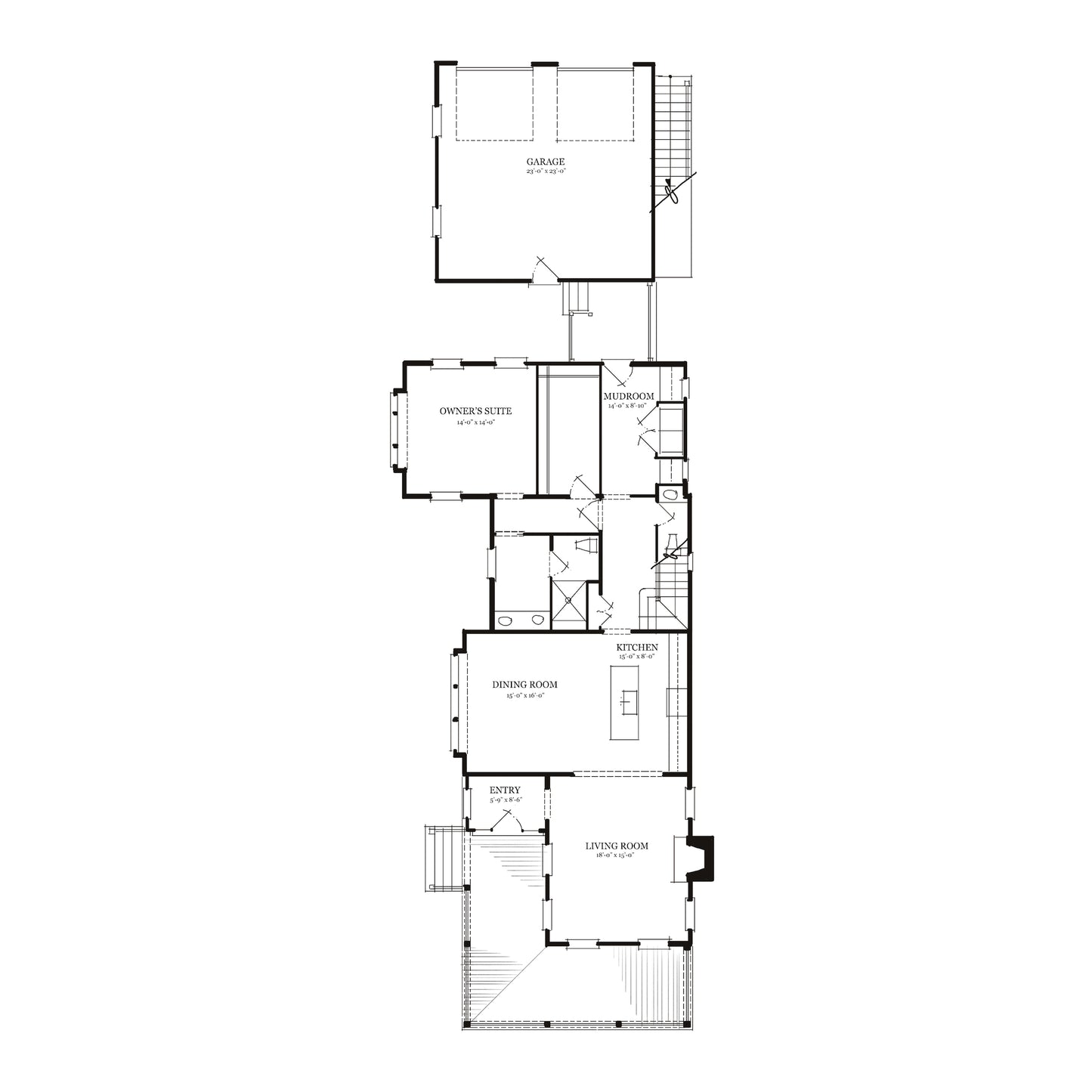
This elegant, four-bedroom home with its wrap-around, double-height porch fits like a dream on a corner lot.
- 4 bedrooms - 4.5 bathrooms
- 26' W x 105' D
- 2 stories
- Alley-loaded, attached garage / carriage house
- Ground floor bedroom suite
- Bay window, walk-in closet, ground floor bedroom, home office, fireplace
- 3,020 square feet
Delivery window: two weeks.
What's Included
What's Included
Your purchase will consist of a one-time, limited license to build each specific plan that is designated in your purchase. If you would like to build that plan more than once, you must purchase a license for each instance that you intend to build.
With your license, you will receive access to a PDF download of the construction drawings for the plans that you have licensed.
For a full description of what you may or may not do with the drawings, please carefully read the Customer Agreement (the license to build) before you activate your license. Purchases are non-refundable after shipment, and licenses may not be transferred or exchanged.
For more details, follow the link to "What's Included."
Shipping and Returns
Shipping and Returns
House Plan orders are delivered in PDF format, via a link that will give you access to a sharing folder on Google Drive.
Orders may be cancelled any time prior to shipment. After shipment, orders are non-refundable and non-transferable.
Please see our Returns policy for more information.
Before You Buy
Before You Buy
Review this checklist to be sure you're ready to purchase.
Share








Sommer Design Studios
Jeremy Sommer has designed homes, held positions of Town Architect, and collaborated on land plans in New Urbanist neighborhoods throughout the country. Jeremy started Sommer Design Studios in 2009, after receiving his Masters of Science in Classical Design from Georgia Tech in association with the Institute of Classical Architecture & Classical America. Prior to that, he earned a Bachelor in Architecture degree from the University of Miami School of Architecture. Jeremy is active in the Urban Guild, the National Town Builders Association, and The Congress of New Urbanism.