Historic Shed
Cassia Carriage House
Cassia Carriage House
Couldn't load pickup availability
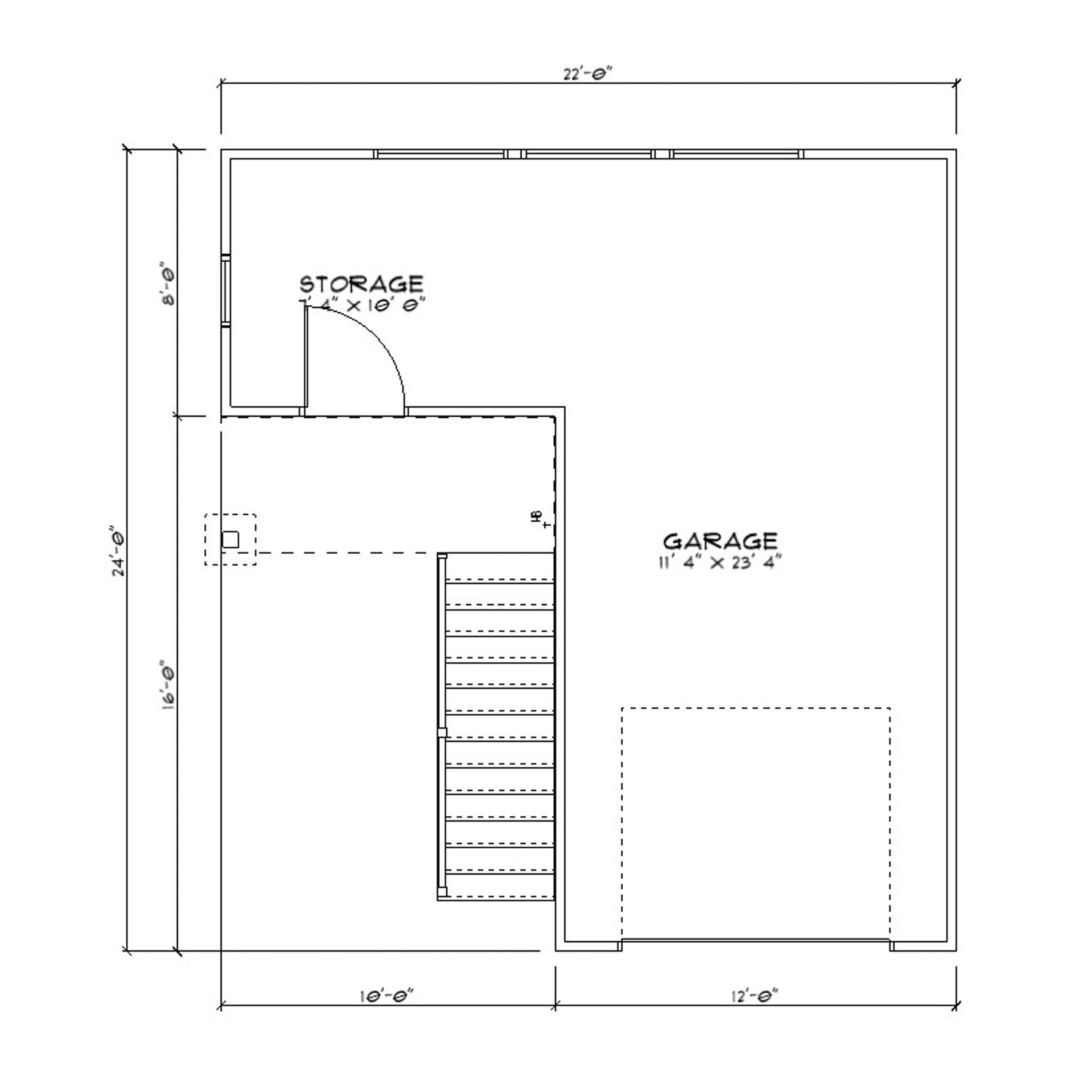
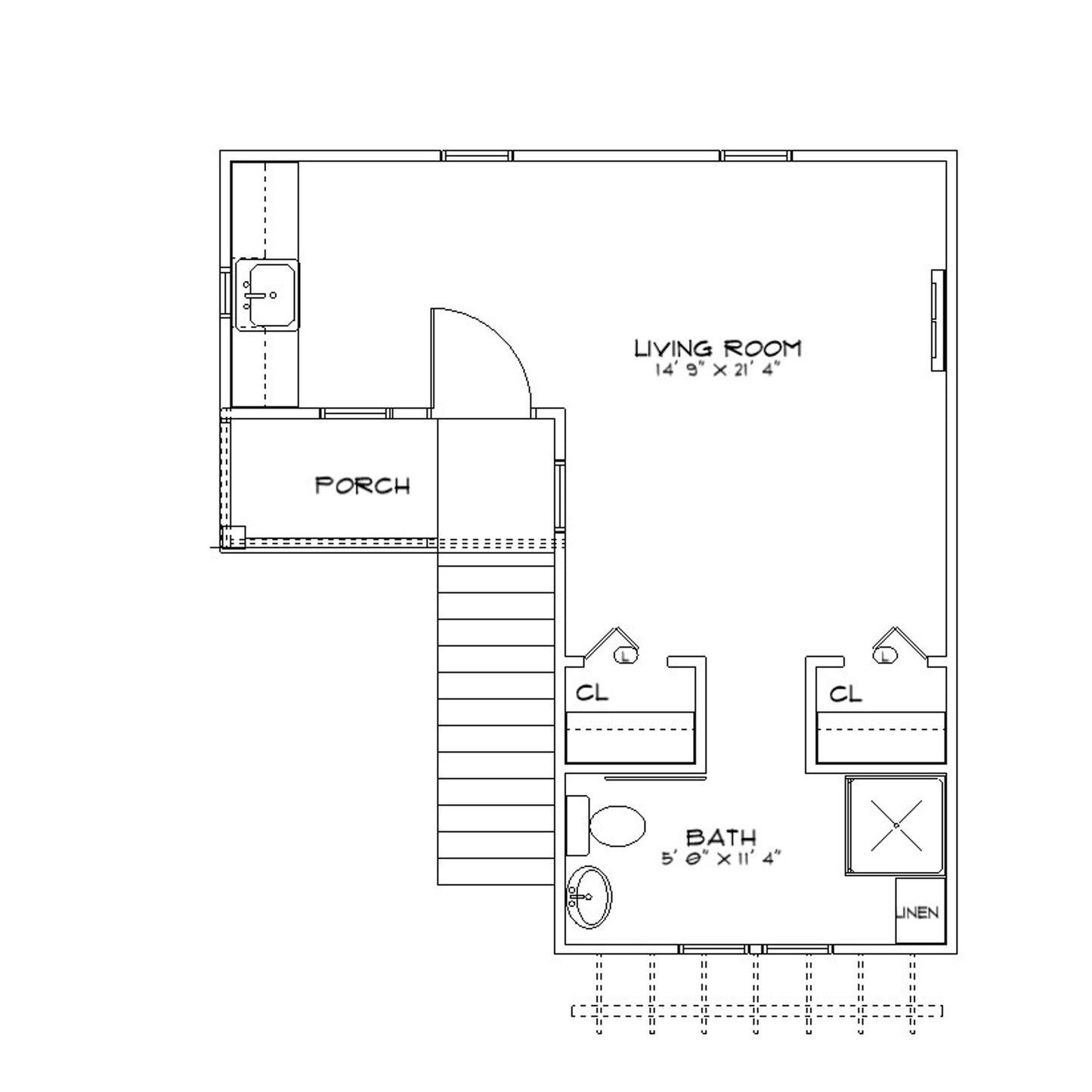
As beautiful as it is useful. This Craftsman-style one-car carriage house hosts an efficiency suite (with wet bar) that doubles as a home office or guest suite.
- 0 bedrooms - 1 bath
- 1-car garage with storage/workshop
- 22' W x 24' D x 20' H
- 2 stories
- 368 square feet living area, 736 total
Delivery window: Original - three days. Mirrored - call for timeline.
What's Included
What's Included
Your purchase will consist of a one-time, limited license to build each specific plan that is designated in your purchase. If you would like to build that plan more than once, you must purchase a license for each instance that you intend to build.
With your license, you will receive access to a PDF download of the construction drawings for the plans that you have licensed.
For a full description of what you may or may not do with the drawings, please carefully read the Customer Agreement (the license to build) before you activate your license. Purchases are non-refundable after shipment, and licenses may not be transferred or exchanged.
For more details, follow the link to "What's Included."
Shipping and Returns
Shipping and Returns
House Plan orders are delivered in PDF format, via a link that will give you access to a sharing folder on Google Drive.
Orders may be cancelled any time prior to shipment. After shipment, orders are non-refundable and non-transferable.
Please see our Returns policy for more information.
Before You Buy
Before You Buy
Review this checklist to be sure you're ready to purchase.
Share





Historic Shed
Historic Shed designs buildings to be durable, useful, and attractive so that they will be cherished for generations. Jo-Anne Peck, company co-owner and designer, has an undergraduate degree in Building Science, a Masters degree in Historic Preservation and is a certified Florida Building Contractor and Residential Wind Load designer. She’s been involved in consulting, design and construction of historic buildings for more than two decades. Build a welcome neighbor to your traditional home with house plans from Historic Shed.