Artifex
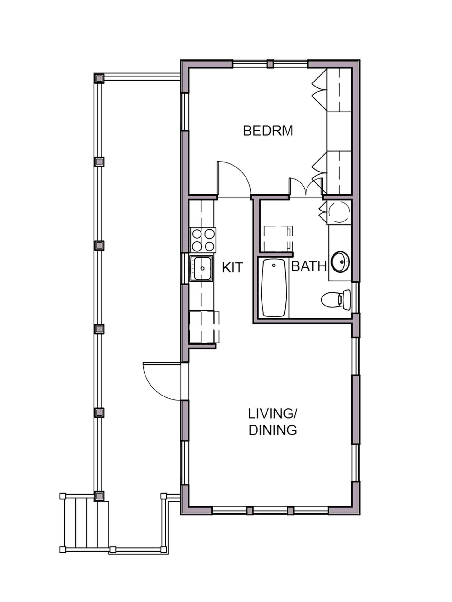
Flora Side Yard Cottage
Flora Side Yard Cottage
Couldn't load pickup availability
Make the most of a narrow lot or a shallow lot with this one-bedroom "side yard" cottage with full-length porch. A buildable design for a small home or cottage court.
- 1 bedroom - 1 bath
- 21' W x 36' D x 15' H
- 1 story
- 504 square feet
Delivery window: One week.
What's Included
What's Included
Your purchase will consist of a one-time, limited license to build each specific plan that is designated in your purchase. If you would like to build that plan more than once, you must purchase a license for each instance that you intend to build.
With your license, you will receive access to a PDF download of the construction drawings for the plans that you have licensed.
For a full description of what you may or may not do with the drawings, please carefully read the Customer Agreement (the license to build) before you activate your license. Purchases are non-refundable after shipment, and licenses may not be transferred or exchanged.
For more details, follow the link to "What's Included."
Shipping and Returns
Shipping and Returns
House Plan orders are delivered in PDF format, via a link that will give you access to a sharing folder on Google Drive.
Orders may be cancelled any time prior to shipment. After shipment, orders are non-refundable and non-transferable.
Please see our Returns policy for more information.
Before You Buy
Before You Buy
Review this checklist to be sure you're ready to purchase.
Share




Artifex
Artifex Cottages is a four-man team composed of William J. Burgin, Bruce B. Tolar, R. John Anderson, and David T. Kim. Collectively, Artifex’s principals have over 140 years of experience in building design, construction, and management. They've designed, developed, and/or built more than a thousand homes and four million square feet of commercial real estate in ten states.