David T. Kim
Magnolia
Magnolia
Couldn't load pickup availability
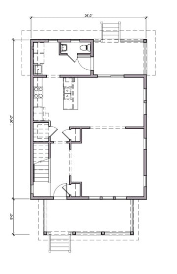
A thoughtful update on traditional Foursquare design. Three bedrooms, two baths upstairs and a half bath down. Open-plan kitchen and dining. Front porch and rear porch for private dining and neighborly visits.
- 3 bedrooms - 2.5 baths
- 24'-7" W x 46'-4" D x 25' H
- 2 stories
- 1,481 square feet
Delivery window: Call for updated timeline..
What's Included
What's Included
Your purchase will consist of a one-time, limited license to build each specific plan that is designated in your purchase. If you would like to build that plan more than once, you must purchase a license for each instance that you intend to build.
With your license, you will receive access to a PDF download of the construction drawings for the plans that you have licensed.
For a full description of what you may or may not do with the drawings, please carefully read the Customer Agreement (the license to build) before you activate your license. Purchases are non-refundable after shipment, and licenses may not be transferred or exchanged.
For more details, follow the link to "What's Included."
Shipping and Returns
Shipping and Returns
House Plan orders are delivered in PDF format, via a link that will give you access to a sharing folder on Google Drive.
Orders may be cancelled any time prior to shipment. After shipment, orders are non-refundable and non-transferable.
Please see our Returns policy for more information.
Before You Buy
Before You Buy
Review this checklist to be sure you're ready to purchase.
Share





David T. Kim
Architect David T. Kim believes that good buildings result from understanding the constraints and opportunities that surround each project. David and his frequent collaborator R. John Anderson are longtime members of the Congress for the New Urbanism and founding members of the Incremental Development Alliance. Collectively, they have designed and built over nine hundred homes and four million square feet of commercial real estate, ranging from courtyard housing to mixed-use developments. Build one house or an entire neighborhood with house plans from the David T. Kim Collection.