Geoffrey Mouen Architect
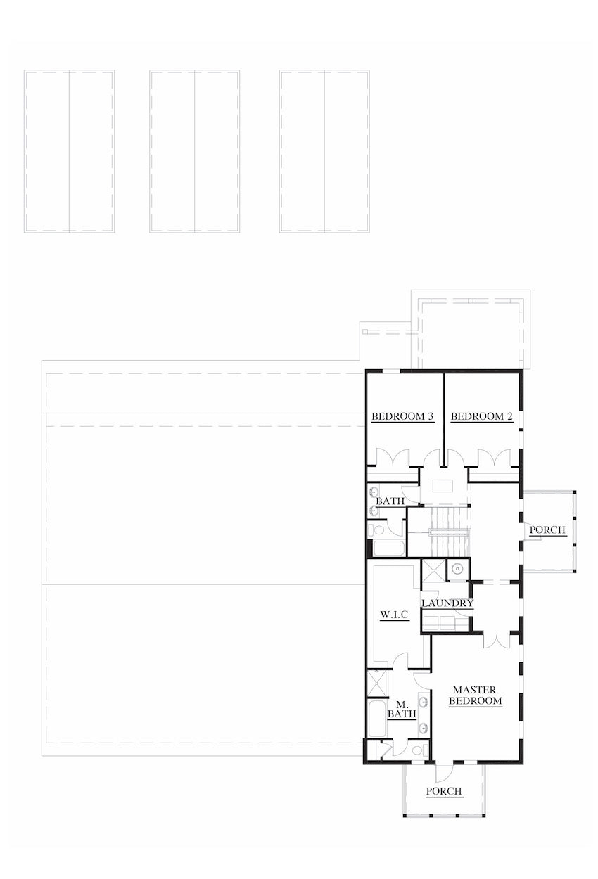
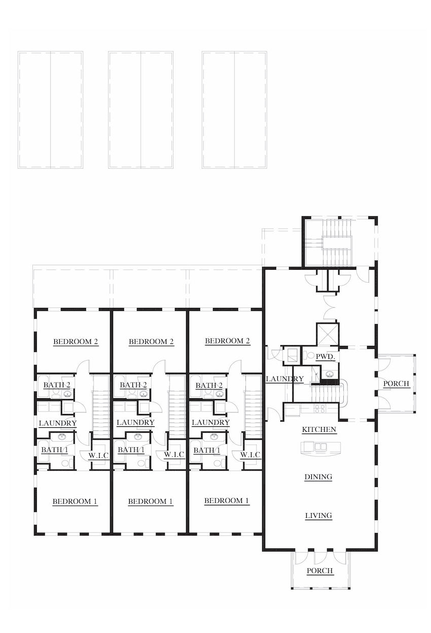
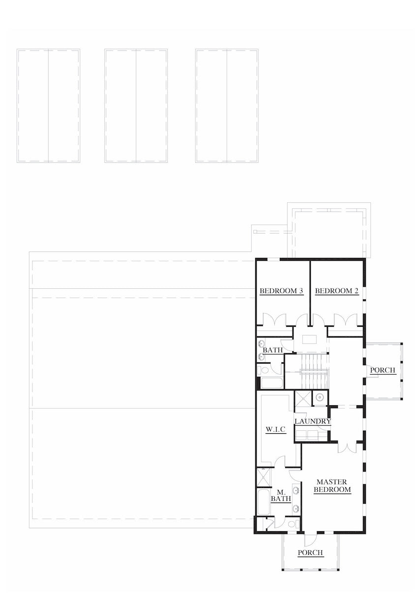
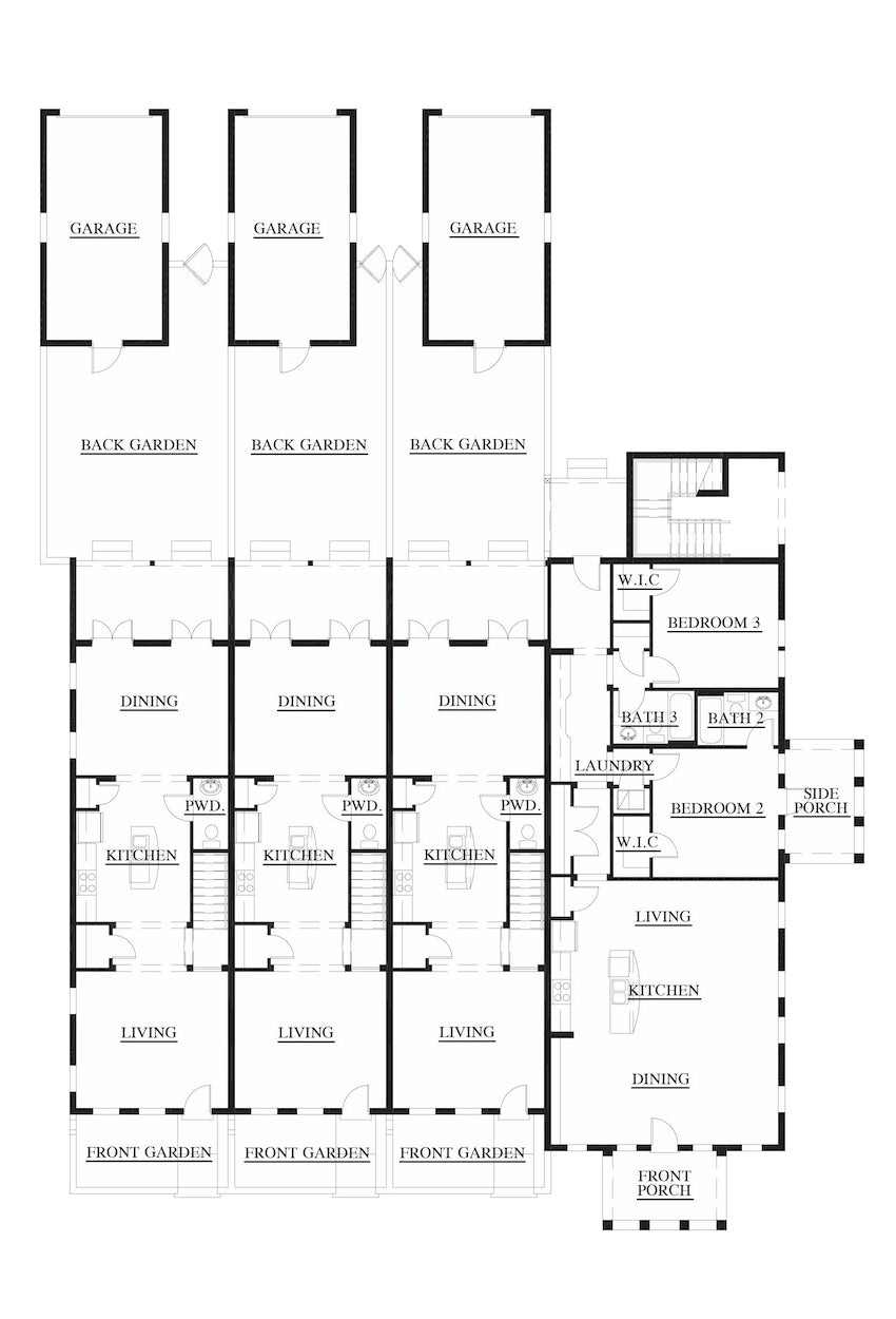
Touro Townhomes
Touro Townhomes
Couldn't load pickup availability
Three townhomes combine with a taller duplex to form a graceful grouping for the corner of a block.
- 5 dwelling units: 3 townhomes; 1 duplex
- 83'4" W x 105'4" D x 47'8" H
- 8,988 total conditioned SF
Townhouse
- 2 bedrooms - 2.5 baths
- Detached garage (13' W x 24' D)
- 16' W x 64' (excluding garage)
- 1,536 square feet
Duplex (overall)
- 32' W x 78'8" D x ~64' H (incl. porches and stairwell)
- 4,380 square feet (total)
Apartment 1 (Ground Floor)
- 2 bedrooms - 2 baths
- 1,460 square feet
Apartment 2 (Upper Floors)
- 4 bedrooms - 3 baths
- 2,920 square feet
Delivery window: Call for updated timeline.
What's Included
What's Included
Your purchase will consist of a one-time, limited license to build each specific plan that is designated in your purchase. If you would like to build that plan more than once, you must purchase a license for each instance that you intend to build.
With your license, you will receive access to a PDF download of the construction drawings for the plans that you have licensed.
For a full description of what you may or may not do with the drawings, please carefully read the Customer Agreement (the license to build) before you activate your license. Purchases are non-refundable after shipment, and licenses may not be transferred or exchanged.
For more details, follow the link to "What's Included."
Shipping and Returns
Shipping and Returns
House Plan orders are delivered in PDF format, via a link that will give you access to a sharing folder on Google Drive.
Orders may be cancelled any time prior to shipment. After shipment, orders are non-refundable and non-transferable.
Please see our Returns policy for more information.
Before You Buy
Before You Buy
Review this checklist to be sure you're ready to purchase.
Share

Geoffrey Mouen Architect
Geoffrey Mouen is an architect, planner, educator, and the founding president of the Florida Chapter of the Institute of Classical Architecture & Classical America. Geoffrey has designed multiple Builder Magazine Showcase homes, as well as the 2004 Palladio Award-winning Enders Park Community Center. He is a member of the American Institute of Architects, the New Urban Guild, and the Congress for New Urbanism, and a M. Arch. graduate of the Savannah College of Art and Design.