Bruce B. Tolar
Tucker Carriage House
Tucker Carriage House
COMING SOON
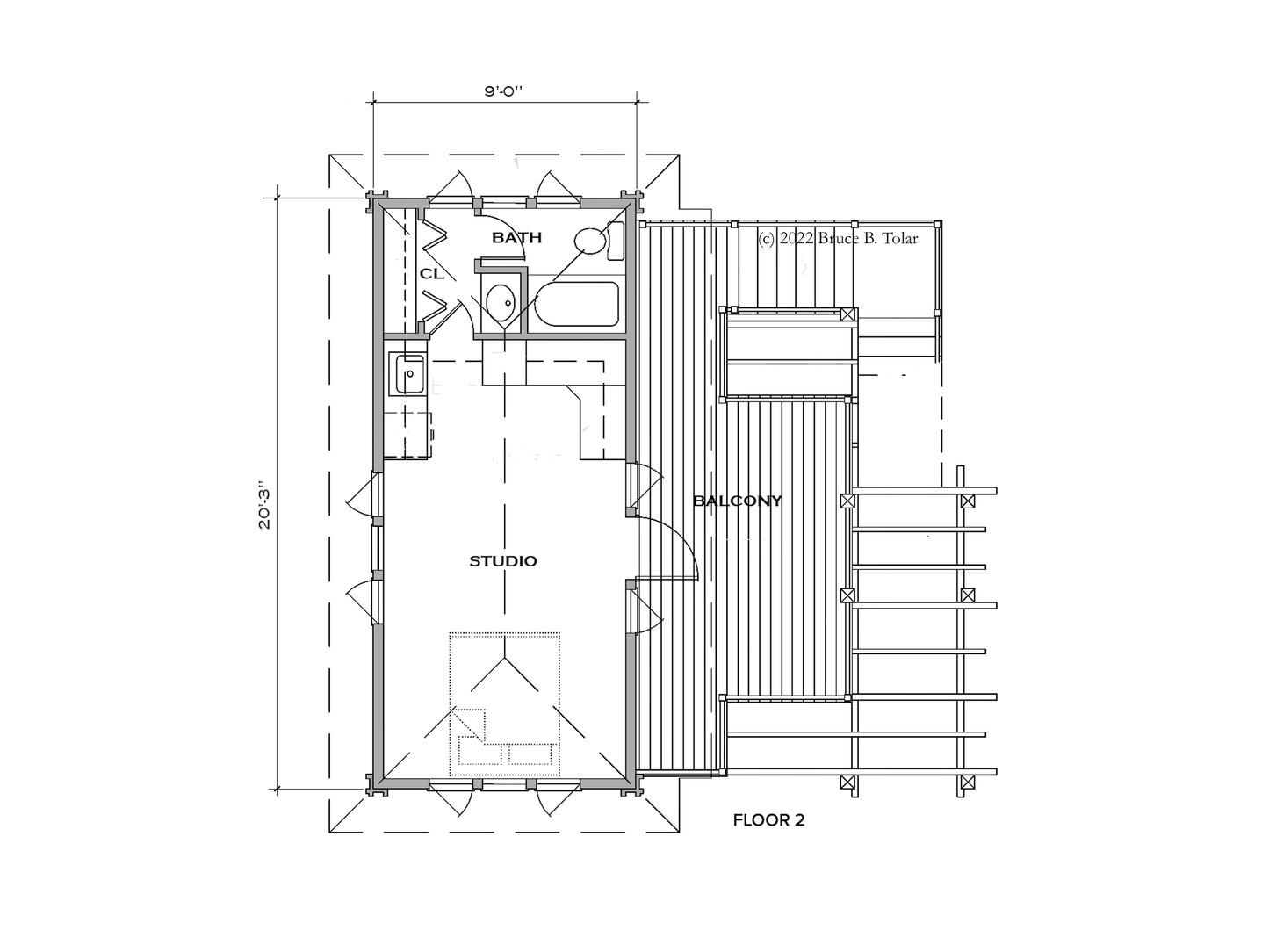
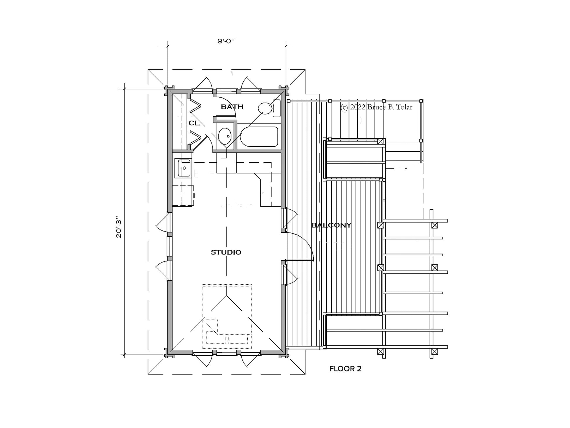
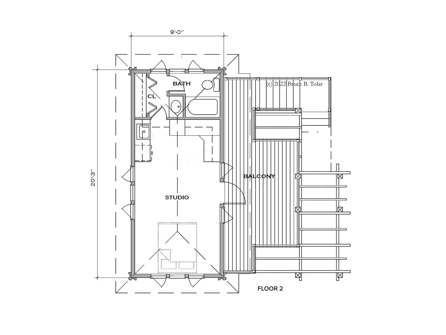
This single-bay carriage house with studio apartment lives larger with a second-story porch that doubles as a carport. The traditional style makes it an appropriate pairing for Southwestern, Usonian, and Craftsman-style homes.
- 0 bedrooms - 1 bath
- 1-car garage with carport
- 9' W x 20'-3" D
- 2 stories
- 182 square feet living area, 331 total
Interested in this design? Get in touch for an update on when the construction set will be available.
What's Included
What's Included
Your purchase will consist of a one-time, limited license to build each specific plan that is designated in your purchase. If you would like to build that plan more than once, you must purchase a license for each instance that you intend to build.
With your license, you will receive access to a PDF download of the construction drawings for the plans that you have licensed.
For a full description of what you may or may not do with the drawings, please carefully read the Customer Agreement (the license to build) before you activate your license. Purchases are non-refundable after shipment, and licenses may not be transferred or exchanged.
For more details, follow the link to "What's Included."
Shipping and Returns
Shipping and Returns
House Plan orders are delivered in PDF format, via a link that will give you access to a sharing folder on Google Drive.
Orders may be cancelled any time prior to shipment. After shipment, orders are non-refundable and non-transferable.
Please see our Returns policy for more information.
Before You Buy
Before You Buy
Review this checklist to be sure you're ready to purchase.
Share





Bruce B. Tolar
Bruce B. Tolar, architect, has designed everything from ocean piers in Ocean Springs to luxury homes in Rosemary Beach. His Cottage Square community in Ocean Springs, Mississippi, is nationally known as a model for the thoughtful use of modular construction. Bruce is a member of the Congress for the New Urbanism and the Incremental Development Alliance. Make your dream house real with plans from the Bruce Tolar Collection.